ID CP1285025

Spatiu birouri | 3 incaperi 55mp | GRADINA 50mp - Loc parcare privat

Această proprietate nu mai este activă,
te invităm să vizualizezi proprietăți similare

ID CP1285025

495 € (negociabil)

Spațiu de birouri de închiriat
Braytim, Timisoara
55 mp
2021

Spatiu comercial Timisoara - Braytim - cu gradina proprie de 50 mp si posibilitatea amenajarii unei intrari aditionale, direct din strada.

In zona Braytim, pe Strada Preot Alexandru Balas, spatiul se afla localizat la parterul unui imobil nou, finalizat in 2021.

Excelent pozitionat, pe o strada frumoasa, linistita, foarte aproape de mai multe puncte de interes ( Giroc, Carrefour Market, Clinica Boia, Strada Mures, Strada Gavril Musicescu, Spitalul Judetean ).

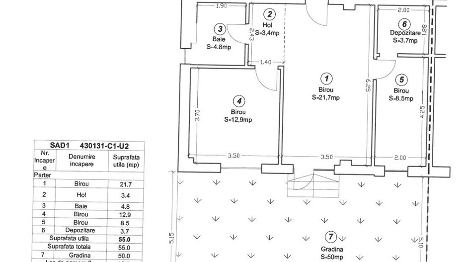
Compartimentare:

* Birou Principal 21.7 mp

* Birou Secundar 12.9 mp

* Oficiu/Chicineta 8.5 mp

* Depozitare 3.7 mp

* Baie 4.8 mp

Dintre aspectele relevante, mentionam:

* 1 loc de parcare privat;

* gradina proprie 50 mp;

* centrala proprie, incalzire in pardoseala;

* 3 incaperi ( birou principal, birou secundar, oficiu/bucatarie ) + baie proprie + spatiu depozitare;

* sistem AC montat;

Pretul de inchiriere este 495 euro.

Disponibilitate: 1 Martie 2023.

Pentru orice alte detalii, suntem bucurosi sa va raspundem, pe oricare dintre canalele de comunicare ( tel, e-mail, whatsapp, social media ).

Haide la vizionare!

Citește mai mult

  • Tip imobil
    Bloc de apart.
  • Etaj
    Parter
  • Număr camere
    2
  • Număr băi
    1
  • Suprafață construită
    71.5 mp
  • Număr terase
    1
  • Suprafață utilă
    55 mp
  • Disponibilitate
    Martie 2023
  • Suprafață totală birouri
    55 mp
  • Compartimentare spațiu
    Compartimentat
  • An construcție
    2021
  • Construcție nouă
    Da
  • Număr etaje clădire
    3
  • Certificat Energetic
    Există
  • Clasă Energetică
    A

Facilități

Afișare logo pe clădire
Cameră server
Centrală termică
Centru comercial în apropiere
Contorizare separată
Control acces securizat pe bază de cartele
Curățenie parcare
Curățenie spații comune
Ferestre care se deschid
Grupuri sanitare amenajate și utilate
Parcare deschisă
Parchet
Posibilitatea alegerii operator date / telefonie
Stație de autobuz în apropiere
Necesare:

Site-ul nu poate funcționa corect fără aceste cookie-uri. Vezi cookie-urile

Statistică:

Strângem statistici anonime despre voi, vizitatorii unici, pentru a vă îmbunătăți experiența dumneavoastră. Vezi cookie-urile

Marketing:

Pentru a ne promova mai eficient serviciile noastre, folosim cookies pentru a vă identifica și a vă oferi proprietăți și servicii personalizate. Vezi cookie-urile

Acest site folosește cookies, află detalii. Alege ce tipuri de cookies dorești să permitem: